现场直击 |《澳洲房产拍卖经验分享》相距不到10分钟, 理想豪宅和破败陋居, 哪个会是你的选择?

2022-04-15 00:20:25

关注澳洲第一传媒,获悉更多澳洲房产动态。


前言


上期我们给大家分享了悉尼北区一条线房屋的拍卖现场,每一处房屋拍卖各有特色,现场妙趣横生,戳链接回顾全文:现场直击 |《澳洲房产拍卖经验分享》悉尼北区好房, 20年来房价翻5倍! 现在却死活卖不出...


而本期拍卖我们来到了悉尼北岸富人区Waverton,今天我们一共要对这里两栋风格天壤地别的房屋进行比较。


那么究竟现场拍卖情况如何?人们对这些房子的态度又是怎样的呢?下面小编带大家来回顾这一期的拍卖情况!


本期内容


一、拍卖房产案例介绍

二、Waverton城区介绍

三、拍卖前房产参观比对

四、拍卖现场回顾


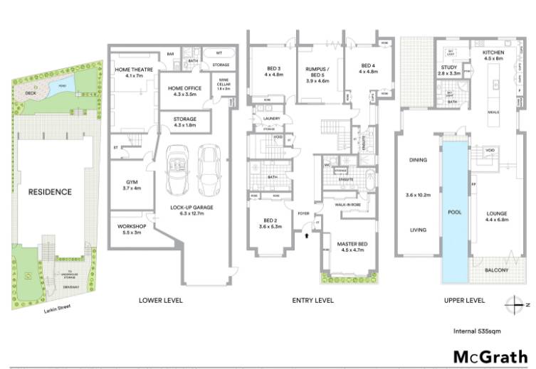
案例介绍(1

时间:2017年10月28日(星期六)下午1:30

地点:30 Larkin street, Waverton, Sydney, NSW

中介公司:McGrath


房屋户型:5房5卫2车位,563平方米


案例介绍 (2

时间:2017年10月28日(星期六)下午2:15

地点:30 Larkin street, Waverton, Sydney, NSW

中介公司:McGrath


房屋户型:2房1卫1车位,322平方米


城区简介


Waverton坐落在悉尼北岸,三面环水,最南端的Balls Head更可眺望悉尼海港大桥,是观赏除夕烟火的热点。


这一区面积不大,消费点也很小,却散发着一股小镇风情,而且区内有水滨公园,环境优美。沿岸一些住宅更享有开扬港湾和悉尼市中心景观,而这些美景住宅自然更为抢手。



位于悉尼市中心北面仅4公里,距离悉尼市区10至15分钟车程,华裔占全区人口8%左右,中港移民占大约5%,接近半数在职者为专业人士,最多人从事金融、法律和会计工作,67%住宅属公寓类型,独立屋只占一成半,差不多八成住宅为两卧室和三卧室单位,出租单位占47%,空置率贴近2%,没有大型商场,消费地段散发小镇风情。


而Waverton的房屋中位价以及超过了$200万澳币,是一个比较受澳洲当地富人喜爱的地点。


拍卖开始前房屋对比


由前面介绍可知,这次对比的两个房子都在Waverton,并且相隔距离并不是很长,第一传媒记者亲测,走路只需11分钟即可。


第一处房产(30 Larkin street, Waverton, Sydney, NSW)在1:30pm的时候拍卖,我们提前大约20分钟来到了现场。这个时候门口已经集合了一些前来看房的人。从外观上看,整个房子是很现代而且比较新的建筑风格。



整个屋子加上地下室一共上下三层。一进门,就可以看出屋里整体装修非常考究,有一种简约美,每一间卧室的风格都差不多,主次卧在人进去的时候都感觉很舒服,大气。



而另一个突显装修考究的地方就是卫生间,5间卫浴都是统一化装配,而且使用的卫浴装潢也是比较现代的。



连接着一楼的还有一处庭院我们稍后介绍,而通往二楼的楼梯也很有意思,在楼梯中部养了一些热带鱼,里面有小丑鱼和拟刺尾鲷鱼,这两种鱼刚好是海底总动员里的多莉和尼莫的原型,不知道房主是否也是海底总动员的粉丝。



而从楼梯走上来,房屋的格局就将房主的个性彰显无遗,首先下面两张照片都是客厅,而在一层楼里有两处大小相同布局的客厅也比较少见。不知道是不是万一两个人想看不同频道时,预防掐架的好办法。



而这栋房子在我看来,同时也是其它来访人员都称奇的地方就是,在两个客厅的中间有一个露天半开放游泳池。这一设计几乎满足了人们对于豪宅的全部设想,半面墙是落地窗,附加用泳池,这样的豪宅谁不想要呢?



上文提到这处豪宅一共有上下三层,这地下一层一半是可以放两辆车的车库。另外一面则是一个全封闭式的家庭影院。在墙上柜子中有各种各样的影片可供观看。说明房主也是一位爱好观影的收藏者。



刚才还说道,这房产还有一处相当不错的庭院,整齐的草坪,附上各式的植被,也可以说房主对这栋房子真的很用心。



在这处小院中间还有一处小池塘,里面养了很多的鱼,其中有一条金色的大锦鲤最引人注意,这条金色锦鲤价格不菲,不知道是不是房主还略有迷信。别人看到锦鲤都要转发以求好运,而房主直接自己养一条,给家里带来好运。



分割线

既然是做对比,那么现在咱们直接跳转到下一处房产(30 Larkin street, Waverton, Sydney, NSW)。刚才小编说,两个房子相隔并不是很远,走路只需11分钟就到。


而相比刚才刚才那栋那哪哪都好的豪宅,这另外一栋房子只能用残破不堪来形容了,不多说,咱们先看点照片。


首先从外表上来看,这栋房子是砖房结构,看起来中规中矩,虽然不是现代,但也还说得过去。



而从结构图上来说,总共300多平米的面积被尽可能的拉长了,而当我们进入屋内参观的时候,这栋房子狭长的感觉更加凸显。



刚一进门,从下面这张图就能感受到屋内的布局结构情况是怎样的了,通体狭长,在走道的一侧开出一间房屋,而房屋里面更是破败不堪。



脱落的墙皮,龟裂的墙体,窗户也有破损,两个屋子连门都是坏的,屋子也早已不通电了,所有的亮度全凭室外的光亮。几乎屋内每一处都透露出破败不堪的感觉,这种房屋是肯定没法住人的。



说完室内,咱们再来看看室外,从这个小客厅出去,就连接到了室外。屋外的木地板已经老化的不成样子了,很多板块都有破损,当我踩上去的时候,总是有点担心会突然断裂。



而花园里更是杂草丛生,各种花盆,杂物都被一股脑的堆砌在院子里。毫无落脚之处,时间一长,这些东西就会变成垃圾,越堆越多,外加上长时间没有人住,这栋房子内外可以说是相当破败。



同处一个区,相隔仅仅不过11分钟的行走路程,就有两个反差如此之大的房子也可以说是十分有趣了。前一栋房屋就是理想豪宅,好山好水好景,什么都有。后一栋房屋却如此年久失修,风雨残破多年,什么都没有。


单单在对两个房子初步观察中,第一处豪宅占尽了优势。但拍卖房产往往不能下结论太早,哪怕再破的房屋,有时候也架不住地段好,推到重建即可。


拍卖现场对比


在但对房屋本身比较后,咱们一同来看一下拍卖现场的情况。


幸运的是,两个房子都有拍卖进行,并且各有特色。


首先说第一处(30 Larkin street, Waverton, Sydney, NSW),现场一共只有两位华人买家注册,而现场观看拍卖的人大约有20人左右。


拍卖师进行了通常的对房屋的介绍,据悉这栋房子是整条街区最好的一栋房子,而现场用的最多的一个词语是:wonderful!!!可见这套房屋的含金量之高,层次之好。



首先第一次起价为:$650万澳币。因为只有两位华人买家注册,所以这场拍卖就变成了他们两个人的双簧,价格也随着两个人的较量而一路飙升。


$680万

$690万

$700万

$705万

$707万

$710万

$712万
$715万


从起拍价的$650万澳币到叫价$715万澳币,价格已经上去了整整$65万澳币,而这时一位买家在思索再三后打算做最后一搏。



$716.8万澳币,其中一位买家示意,这是他最后一次叫价,这个数字就相当于是他的幸运数字一样。


而事实就是这么巧,当这个价格一出来,另外一位买家立马表示放弃出价。然而在中介工作人员和房主确认后,遗憾的是这一价格依然没有到达房东的预期。之后这位买家将与房东单独进行沟通和协商,看是否有可能达成一致完成交易。


分割线


看完理想豪宅的拍卖后,咱们继续讲目光转向刚才那栋有些破败的房屋 (30 Larkin street, Waverton, Sydney, NSW


令人意外的是,虽然房子不怎么样,但是现场的人简直多到爆。据中介说,这栋房子的注册买家多达15组,大家为了现场注册买房,不得不在这岌岌可危的房屋中排队等待注册。本来面积就狭长的房屋,因为这么多人的来访而显得更加狭小。



而在拍卖开始前,在屋外等候的人群非常的多,而且多以外国人为主。华人也有,但是却和华人区的拍卖相比少得多。但如此多人也说明了这处房产的吸引力以及未来增长的潜力



因为现场人太多,而场地又比较小,所以为了拍卖的效果,拍卖师号召现场注册的人,或者有牌子的有进入围栏内,而其余人在外围观看。



相比起第一个只有两人竞拍的情景,因为人多,这处拍卖显得精彩不少。15组买家为了拿下这处房产可以说是毫不留情,从第一次出价到每次加价都是快准狠的完成。而因为现场加价次数实在太多,为此第一传媒的记者做了一个表格给大家更直观的看。




$160万澳币为起拍价,而当喊价为$200万澳币的时候,在场的人惊呼,记者附近很多人表示,稍微有点贵了。而激烈的现场,将最后价格定格在了$208.8万澳币。



最后这处房产由一对外国夫妇拿下,两位年纪偏大,但是预计这处房产将会被推到重建。


比较结语


这两处房产就内容本身可谓是天差地别,犹如冰与火之歌。相隔并不远但是却差之千里。第一处房产本身建筑完整,近新,可以说买下即可拎包入住。但是另外一方面却会有极高的费用或者价格。


房屋在$716万澳币的情况下依旧不能达到房东的预期。可见这处房子对于一般买房的来说不是能够轻易承受的,那么自然来参与拍卖或者注册的人就比较小。但是但就房子本身而言,那是相当的好,理想之所。


而第二处房屋相比起第一处房屋,就可以直接打入冷宫或者化为平民窟了。但是咱们都知道,有时候这种房子就是地比房子值钱。现场之所以引人哄抢,多达15组买家注册,就是源于这处房产未来一旦推到重建的增长潜力大。


整出房产交易价格最终定在了$208.8万澳币。现场一些人认为单单为了这片地方,这么贵的价格稍微有些偏高,但是既然买家愿意花这么多钱去买一栋简陋破败到不行的房屋,未来一定有自己的打算。


究竟哪个好,哪个未来更有价值这都不好说,只能交给时间来评判。


往期回顾



本期编辑:财经小牛仔

策划:一姐


推广


长按二维码关注我们


荐读DISCOVERY


移民澳洲 | 澳洲PR | 澳洲养老 | 澳洲保险 澳洲入境指南 | 澳洲旅游 打工度假签证 | 澳洲中小学排名 | 澳洲儿童医院 | 澳洲代购 | 澳洲外卖 | 悉尼生活成本 | 悉尼居住 | 留学生回国须知 | 


期爆文:


澳洲人吃国宝 | 澳洲医学界新成果! 预防根治过敏 澳洲华人收入大揭秘! 别拦我, 我要去澳洲坐牢了!看到这样的Zara和H&M你还敢买吗? |  我说悉尼,你烂透了... | 你说你有点难追,我就摔你玻璃杯... | 注意!最近千万不要来澳洲,因为..... | 悉尼,有500万人假装在生活 |


全澳精选房产:


仙村镇房价

Copyright © 2023 All Rights Reserved 版权所有 洛阳宣传音乐虚拟社区